致1人重伤,柳州鱼峰区南片区排水管网改造建设工程6·22事故查明

Connor 欧意官网入口 2025-10-09 9 0

日前,柳州市鱼峰区政府公布《柳州市鱼峰区南片区排水管网改造建设工程“6·22”一般高处坠落事故调查报告》。

调查报告全文如下——

致1人重伤,柳州鱼峰区南片区排水管网改造建设工程6·22事故查明

柳州市鱼峰区南片区排水管网改造建设工程“6·22”一般高处坠落事故调查报告

2025年6月22日16时50分左右,位于鱼峰区燎原路的柳州市鱼峰区南片区排水管网改造建设工程工地发生一起高处坠落事故,造成1人重伤。

事故调查组坚持“科学严谨、依法依规、实事求是、注重实效”和“四不放过”的原则,深入开展各项调查工作。通过现场勘验、调查取证和综合分析,查明了事故经过、原因、人员伤亡和直接经济损失,认定了事故性质和责任,提出了对有关责任人员和责任单位的处理建议,针对事故暴露出的问题提出了整改防范措施,形成事故调查报告如下:

一、事故基本情况

(一)涉事项目基本情况

柳州市鱼峰区南片区排水管网改造建设工程拟对柳州市鱼峰区南片区断面不满足流量要求造成内涝的现有排水网进行更新改造,并完善区域排水管网。

荣军路至燎原路排水渠道工程新建d1000~d2000排水管,管道总长67m(不含雨水口连接管);新建B×H=4500×2500~5000×3000mm排水管,新建渠道总长1600m。总体施工顺序:施工准备→三通一平→测量放线→围挡施工→燎原路支护施工→燎原路结构施工→燎原路道路施工→蝴蝶山路支护施工→蝴蝶山路结构施工→蝴蝶山路道路施工→七彩路支护施工→七彩路结构施工→七彩路道路施工。排水箱渠施工顺序:沟槽验收→垫层施工→底板钢筋绑扎→底板模板安装→底板砼浇筑→支架施工→顶板钢筋施工→顶板模板施工→顶板混凝土施工→混凝土养护→模板及支架拆除施工→沟槽土方回填施工。

(二)事故相关单位情况

1.建设单位。柳州市城市投资建设发展有限公司,统一社会信用代码为914502007151XXXXXX,类型为有限责任公司(非自然人投资或控股的法人独资),法定代表人杨某,住所为广西壮族自治区柳州市城中区马鹿山路X号,经营范围:一般项目:城市基础设施及公用事业单位国有资产的营运(体育中心和防洪工程的国有资产除外)及对市政府指定的城市基础设施建设项目建设投资;土地一级开发整理及运营等。

展开全文

2.监理单位。广西共创建设项目管理有限责任公司,统一社会信用代码为914501006724XXXXXX,类型为有限责任公司(自然人投资或控股),法定代表人陈某,住所为南宁市江南区白沙大道X号,经营范围:许可项目:建设工程监理;水利工程建设监理;公路工程监理;水运工程监理;建设工程勘察;建设工程设计;建设工程施工等。持有《工程监理资质证书》,编号:E145000410,资质等级:房屋建筑工程监理甲级;市政公用工程监理甲级,有效期至2028年12月22日。

2024年12月12日,柳州市城市投资建设发展有限公司与广西共创建设项目管理有限责任公司签订《建设工程监理合同》(合同编号:CT2024121000014GZ),双方就柳州市鱼峰区南片区排水管网改造建设工程委托监理与相关服务事项协商一致,订立本合同。

3.施工总包单位。中交路桥建设有限公司,统一社会信用代码为911100005906XXXXXX,类型为其他有限责任公司,法定代表人赵某法,住所为北京市通州区潞城镇武兴路X号,经营范围:建设工程项目管理;工程勘察设计;承包与公司实力、规模、业绩相适应的国外工程项目,对外派遣实施上述境外工程所需的劳务人员;施工总承包;专业承包;城市园林绿化等。持有《建筑业企业资质证书》,证书编号:D111020785,资质类别及等级:公路工程施工总承包特级;建筑工程施工总承包壹级;铁路工程施工总承包壹级;市政公用工程施工总承包壹级等,有效期至2028年12月22日。持有《安全生产许可证》(编号:(京)JZ安许证字﹝2022﹞106831),有效期为2022年10月24日至2025年10月23日。

2024年12月16日,柳州市城市投资建设发展有限公司与中交路桥建设有限公司签订《建设工程施工合同》(合同编号:CT2024121100015GZ),双方就柳州市鱼峰区南片区排水管网改造建设工程施工及有关事项协商一致,共同达成协议。

4.劳务分包单位。贵州和其润建筑劳务有限公司,统一社会信用代码为91520302MACUXXXXXX,类型为有限责任公司(自然人投资或控股),法定代表人杨某,住所为贵州省遵义市红花岗区忠庄街道X号,经营范围:建筑劳务分包;施工专业作业;建设工程施工;道路货物运输(不含危险货物);公路管理与养护;路基路面养护作业;住宅室内装饰装修等。持有《建筑业企业资质证书》,证书编号:DB3520205751,资质类别及等级:施工劳务不分等级,有效期至2028年12月31日。持有《安全生产许可证》(编号:(黔)JZ安许证字﹝2024﹞021130),有效期为2024年5月24日至2027年5月23日。

2025年5月20日,中交路桥建设有限公司与贵州和其润建筑劳务有限公司签订《管道、渠道工程施工劳务分包合同》(合同编号:LJLJSC-PJ2024042087-010525002),劳务分包作业范围:包括但不限于现浇混凝土涵洞、钢筋混凝土承插口管、钢筋混凝土企口管、检查井、跌水井等工程所有内容,具体以甲方提供的图纸和工程量清单为准,施工设计图与工程量清单不一致时以工程量清单为准。同时双方签订了《安全生产、环境保护管理协议书》,在协议中约定了各自的安全生产管理职责。

2025年5月29日,贵州和其润建筑劳务有限公司(甲方)与宋某高(乙方)签订《广西壮族自治区房屋建筑和市政基础设施工程领域简易劳动合同》,乙方同意在甲方柳州市鱼峰区南片区排水管网改造建设工程项目部钢筋工岗位工作,入场前项目部对宋某高开展了三级教育培训并进行了安全技术交底。

(三)事故现场情况

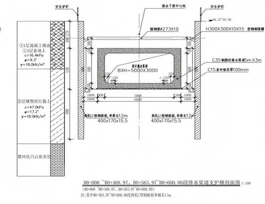
事故发生地位于柳州市鱼峰区南片区排水管网改造建设工程燎原路段(图1、2),事发时项目部按排水箱渠施工顺序施工至顶板钢筋施工。根据施工设计,排水箱渠宽5米、高3米,采用单根长12米的热轧U型钢板桩进行支护(图3),排水箱渠顶板边缘至用于支护的热轧U型钢板桩约0.9米(图4),排水箱渠临边未见搭设防护栏杆和支挂安全网(图5)。

致1人重伤,柳州鱼峰区南片区排水管网改造建设工程6·22事故查明

图1柳州市鱼峰区南片区排水管网改造建设工程施工平面图及事发地

致1人重伤,柳州鱼峰区南片区排水管网改造建设工程6·22事故查明

图2事故现场施工图

致1人重伤,柳州鱼峰区南片区排水管网改造建设工程6·22事故查明

图3排水渠道支护横剖面图

致1人重伤,柳州鱼峰区南片区排水管网改造建设工程6·22事故查明

图4排水箱渠边缘至热轧U型钢板桩约0.9米

致1人重伤,柳州鱼峰区南片区排水管网改造建设工程6·22事故查明

图5事发时排水箱渠临边未见搭设防护栏杆和支挂安全网

二、事故发生经过和应急处置情况

(一)事故发生经过

2025年6月22日下午,宋某高在排水渠顶板平台上绑扎钢筋。当日因降雨导致平台表面湿滑,至16时50分左右,宋某高起身准备去取钢筋时不慎滑倒,从平台边缘坠落至基坑底部(图6、7)。

致1人重伤,柳州鱼峰区南片区排水管网改造建设工程6·22事故查明

图6宋某高坠落痕迹

致1人重伤,柳州鱼峰区南片区排水管网改造建设工程6·22事故查明

图7宋某高坠落现场

(二)事故应急处置情况

宋某高坠入坑底后,立即向周围工友呼救。钢筋班组长刘某强接到求救信息后,迅速向正在项目现场其他位置的项目负责人廖某辉报告。廖某辉随即拨打120急救电话,同时组织现场工人用担架将伤者从基坑中抬出。120急救医生到达现场后,在转运伤者的同时拨打110报警,110民警通过12345政府热线报送事故信息。

接到事故报告,鱼峰区应急管理局和住建、街道等相关部门迅速派人赶赴现场,开展现场勘验、证据收集等事故调查和善后处理工作。

三、事故造成的人员伤亡和直接经济损失

(一)人员伤亡情况

伤者:宋某高,男,53岁,钢筋工;户籍地:贵州凤冈;伤害程度:经广西壮族自治区脑科医院诊断为胸椎骨折、腰椎骨折、脊髓损伤、硬膜外血肿、尾骨骨折、多处挫伤。依据《企业职工伤亡事故分类》(GB6441-86)第 4.2 条、表B3的规定,损失工作日为105日,达到重伤标准。

(二)经济损失情况

根据《企业职工伤亡事故经济损失统计标准》(GB6721-86)的规定,本起事故已造成的直接经济损失约为31万元。其中伤者医疗费用7万余元,此费用已全部由贵州和其润建筑劳务有限公司承担支付,同时经双方协商一致,贵州和其润建筑劳务有限公司向伤者赔偿24万元。

四、事故发生的原因

(一)事故直接原因

1.宋某高安全意识淡薄,在排水渠顶板平台作业过程中未确认现场安全条件,在湿滑的平台上不慎滑倒;违反《总体施工组织设计》中关于临边作业的规定,未使用安全绳和安全带,导致滑倒后坠入基坑。

2.贵州和其润建筑劳务有限公司未按《总体施工组织设计》的规定,在排水渠顶板平台临边设置防护栏或安全网。这一违规行为导致宋某高滑倒后直接坠入无任何防护措施的基坑。

(二)事故间接原因

贵州和其润建筑劳务有限公司生产安全事故隐患排查治理不到位,未及时发现并消除排水渠顶板平台临边未设置防护栏或安全网的事故隐患,未监督、教育宋某高按照使用规则佩戴、使用安全绳和安全带。

五、事故性质

经调查认定,柳州市鱼峰区南片区排水管网改造建设工程“6·22”一般高处坠落事故是一起生产安全责任事故。

六、事故责任认定以及处理建议

1.宋某高,违反安全管理规定进行临边高处作业,对事故发生负有直接责任,鉴于其在事故中受重伤,建议不追究其责任。

2.贵州和其润建筑劳务有限公司,未落实企业安全生产主体责任,未采取措施消除生产安全事故隐患,未监督、教育从业人员按照使用规则佩戴、使用劳动防护用品,违反了《安全生产法》第四十一条第二款、第四十五条的规定,对事故的发生负有责任。建议由鱼峰区应急管理局依照《安全生产法》第一百一十四条第(一)项和《生产安全事故罚款处罚规定》第十四条第(一)项的规定予以行政处罚。

3.廖某辉,贵州和其润建筑劳务有限公司柳州市鱼峰区南片区排水管网改造建设工程项目负责人,未履行法定职责,及时消除生产安全事故隐患,违反了《建设工程安全生产管理条例》第二十一条第二款、《安全生产法》第二十一条第(五)项的规定,对事故的发生负有责任,建议由鱼峰区应急管理局依照《安全生产法》第九十五条第(一)项予以行政处罚。

七、事故防范措施建议

贵州和其润建筑劳务有限公司要严格落实安全生产主体责任,强化安全生产红线意识,牢固树立安全发展理念。一是深刻吸取事故教训,深入剖析事故原因,组织全员开展警示教育,通报事故情况,举一反三,坚决防范同类事故发生;二是严格按照总体施工组织设计方案、专项技术方案等安全技术措施的要求组织施工,落实各类安全防护保障措施;三是落实风险分级管控和隐患排查治理双重预防机制,认真开展作业场所危险因素辨识与分析,采取技术和管理措施,及时消除生产安全事故隐患;四是加强对从业人员的安全教育培训,监督从业人员严格按规定佩戴、使用劳动防护用品,切实增强员工安全意识,杜绝类似事故再次发生。

(发布机构:柳州市鱼峰区政府)

评论